新商品“DIMENSION(ディメンション)シリーズ”が
2026年春よりリリース開始
DIMENSIONとは”次元”を意味し、最先端であること。想像を超えること。この想いが本シリーズの由来です。
斬新でありながら、細部まで設計された繊細さ、外観の力強さ、そして新しさを兼ね備えた注目シリーズのトレーラーハウスを2026年春より販売開始します。
先駆けて、パークホームズで販売予定の『DIMENSIONシリーズ』3モデルをご紹介します。
ジャパンクオリティをもって再構成された本製品は、ご利用される方にとって”特別な体験/空間となること”を探求し、試作を重ねてきました。
大切な想い出をぜひこのディメンションシリーズとともに刻んでいただきたいです。
-
-
アイデアを、精度高く“形”にする製造力。
DIMENSIONシリーズの造形は、単なるデザイン発想だけで成立するものではありません。
これまで培ってきた製造ノウハウと技術力があるからこそ、しなやかで美しい曲線を、現実のプロダクトとして成立させています。
また、その製造技術には、高層ビルなどの建築分野でも採用されるレベルの耐久性・耐候性に配慮した技術思想が取り入れられています。
高所や過酷な環境下でも、長期間美観を保つことを前提とした考え方です。
複雑な形状であっても妥協せず、精度と美しさを両立させるために、製造技術そのものも進化を続けています。
-
-
光によって完成する、もう一つの表情。
DIMENSIONシリーズは、昼間の造形美だけでなく、夕暮れから夜にかけての表情にもこだわっています。
本体に組み込まれた照明ラインは、単なる演出ではなく、デザインの一部として設計。
周囲の景観と呼応しながら、街のランドスケープの中で存在感を放ちます。
当社が掲げる「トレーラーハウスの概念を変える/越える」というミッションを、視覚的に体現する要素です。
-
-
曲線美を実現するための、合理的な素材選定。
DIMENSIONシリーズでは、アルミニウムの特性を最大限に活かしています。
アルミニウムは原子構造上、「曲げる」「伸ばす」といった加工に優れた素材。
そのため、直線だけでは表現できない有機的なフォルムや曲線表現が可能になります。
高層ビル・自動車・航空機・スマートフォンなど、高い精度が求められる分野で採用されてきた素材であり、デザイン性と合理性を両立させる選択です。
-
-
美しさを、長く保つために。
アルミニウムは錆びにくく、雨風や紫外線といった屋外環境にも強い素材です。
そのため、長期間にわたって外観の美しさを維持しやすいという特長があります。
結果として、メンテナンスの頻度やコストを抑えることにもつながります。
見た目だけでなく、長く使い続けることを前提にした設計思想です。
-
-
未来を見据えた、ものづくり。
アルミニウムは、溶解・再凝固を繰り返しても品質が劣化しにくい特性を持ち、半永久的にリサイクル可能な素材です。
DIMENSIONシリーズでは、こうした素材特性を活かし、環境負荷の低減にも配慮したものづくりを目指しています。
デザインや機能だけでなく、次の世代へつながる選択としての価値も大切にしています。
-
-
トレーラーハウスとしての導入に限らず、建築確認申請を取得し、一般建築物としても設置が可能です。
ご計画地を管轄される行政にもお話しを伺いながら、当社にてその是非をご提案いたします。
住宅ローンなども一般建築にする事で利用が可能となります。DIMENSIONSシリーズ商品のご紹介
ディメンションシリーズ - モデル プラネット
標準価格998万円〜(税込)※輸送費、設置費はご計画地により別途
サイズ
- 横幅3.3m
- 長さ11.5m
標準装備
- アルミパネル仕上げ(内外装)
- 全窓へ高断熱ペアガラス採用
- アンビエントLEDライト採用
- 天窓
- 電動カーテンレール
- ブラインド内蔵片開きドア
- 24時間換気
- ポーチ照明
- 室内照明
- 土足対応フローリング
搭載可能設備(オプション)
- トイレ
- 洗面台
- 脱衣室
- シャワールーム
- キッチン
- 収納棚
DIMENSIONシリーズ モデルP(プラネット) 仕様完成参考図面
ディメンションシリーズ - モデル ギャラクシー
標準価格928万円〜(税込) ※輸送費、設置費はご計画地により別途
サイズ
- 横幅3.5m
- 長さ11.5m
標準装備
- アルミパネル仕上げ(内外装)
- 全窓へ高断熱ペアガラス採用
- アンビエントLEDライト採用
- 天窓
- 電動カーテンレール
- ブラインド内蔵片開きドア
- 24時間換気
- ポーチ照明
- 室内照明
- 土足対応フローリング
搭載可能設備(オプション)
- トイレ
- 洗面台
- 脱衣室
- シャワールーム
- キッチン
- 収納棚
DIMENSIONシリーズ モデルG(ギャラクシー) 仕様完成参考図面
ディメンションシリーズ - モデル アース
標準価格948万円〜(税込) ※輸送費、設置費はご計画地により別途
サイズ
- 横幅3.3m
- 長さ11.5m
標準装備
- アルミパネル仕上げ(内外装)
- 全窓へ高断熱ペアガラス採用
- アンビエントLEDライト採用
- 天窓
- 電動カーテンレール
- ブラインド内蔵片開きドア
- 24時間換気
- ポーチ照明
- 室内照明
- 土足対応フローリング
搭載可能設備(オプション)
- トイレ
- 洗面台
- 脱衣室
- キッチン
- 収納棚
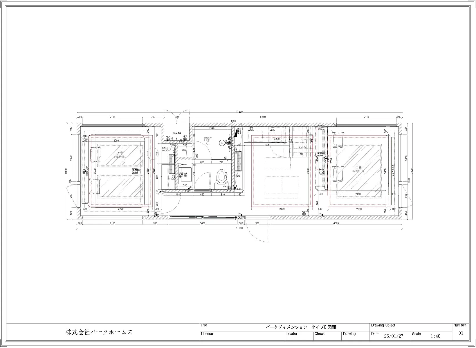
DIMENSIONシリーズ モデルE(アース) 仕様完成参考図面
宿泊体験のお申し込み
DIMENSIONシリーズの世界観を、宿泊体験として体感できる施設をご用意しています。
写真や資料だけでは伝わらない空間設計やディテールを、南阿蘇でご確認ください。2026/4/26 OPEN予定








